Opis Nekretnine

U samom srcu Beograda, na jednoj od najatraktivnijih lokacija – Njegoševoj ulici, sa direktnim pogledom na Mitićevu rupu, izdaje se lokal od 200 m2, izuzetnog potencijala za razvoj ugostiteljskog objekta ili drugog komercijalnog sadržaja.

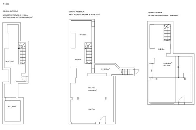
Prostor se prostire na tri nivoa: prizemlje (107 m2) sa visinom plafona gotovo 5 m, idealno za prostor za sedenje, šank i izlog prema ulici; galerija (47 m2) koja može služiti kao dodatni deo za goste; i podrum (45 m2) predviđen za kuhinju, toalete i tehničke prostorije. Postoji mogućnost formiranja bašte od oko 50 m² na trotoaru ispred lokala, što ovaj prostor čini posebno pogodnim za restoran, bistro, kafić ili kafeteriju.

Lokal je u izvornom stanju, ali deo radova je već započet u pravcu opremanja za ugostiteljsku namenu. Zakupac može ostvariti kompenzaciju ulaganja kroz umanjenje zakupnine, što omogućava prilagođavanje prostora sopstvenom konceptu i estetici.

Zahvaljujući izuzetnoj frekvenciji prolaznika, odličnoj vidljivosti i centralnoj lokaciji, ovaj lokal predstavlja savršenu priliku za brend koji želi prepoznatljivo i prometno mesto u Beogradu.

Posrednička naknada se obračunava u skladu sa Opštim uslovima poslovanja agencije  ”DIVIS NEKRETNINE” d.o.o.

Detalji Nekretnine

Ažurirano 14 Oktobra, 2025 u 11:51 am
  • Nekretnina ID: HZ-41749
  • Cena: 6,000€
  • Kvadratura: 107 m²
  • Sobe: 3
  • Kupatilo: 1
  • Tip Nekretnine: Lokal
  • Status Nekretnine: Izdavanje Stanova Beograd
  • Grejanje: EG
  • Tip objekta: Stara Gradnja
  • Stanje nekretnine: Izvorno
  • Sprat: PR
  • Ukupna Spratnost: 6
  • Dodatno: Depozit
  • Tehnička oprema: Kablovska TV, Internet, Klima
  • Sigurnosna oprema: Video nadzor / Interfon
  • Lokacija Његошева, Крунски венац, Београд (Врачар), Градска општина Врачар, Београд, Град Београд, Централна Србија, 11000, Србија
  • Grad Beograd
  • Poštanski broj 11000

Dodatna Opremljenost

Kontakt Informacije

Pregledaj Sve Nekretnine
Divis Nekretnine

Imate Dodatna Pitanja o Nekretnini?

Compare listings

usporedi
Divis Nekretnine
  • Divis Nekretnine